О студии
Портфолио
Контакты
+7 926 724 57 07
Услуги
Создаем комфортный фон для ваших историй
Москва
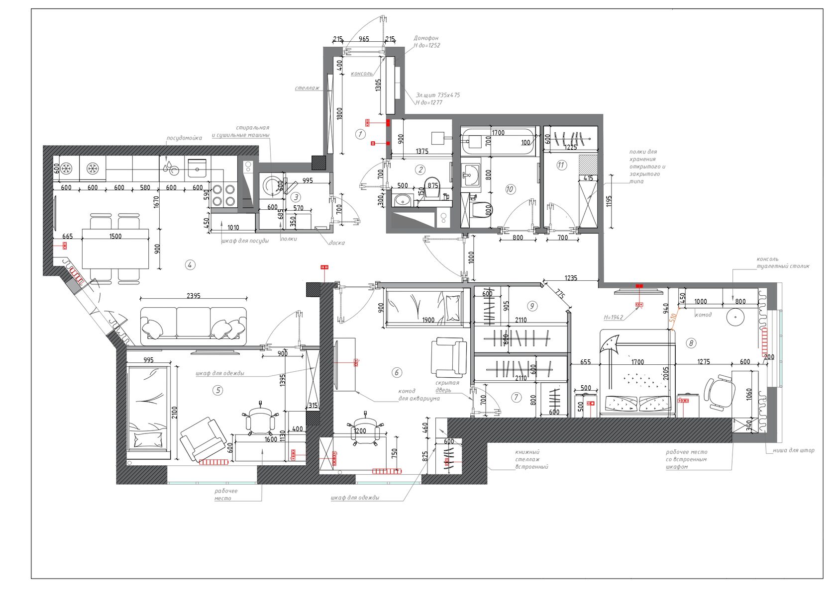
Квартира на улице Привольная
В этой квартире продумывалась глобальная перестройка с организацией дополнительной комнаты для младшего из двух братьев.
Локация: Москва
Год реализации: 2023
Площадь: 92 м²
ПЛАНИРОВОЧНОЕ РЕШЕНИЕ
Предыдущий проект
Следующий проект