Москва
Квартира в ЖК "Пресня Сити"
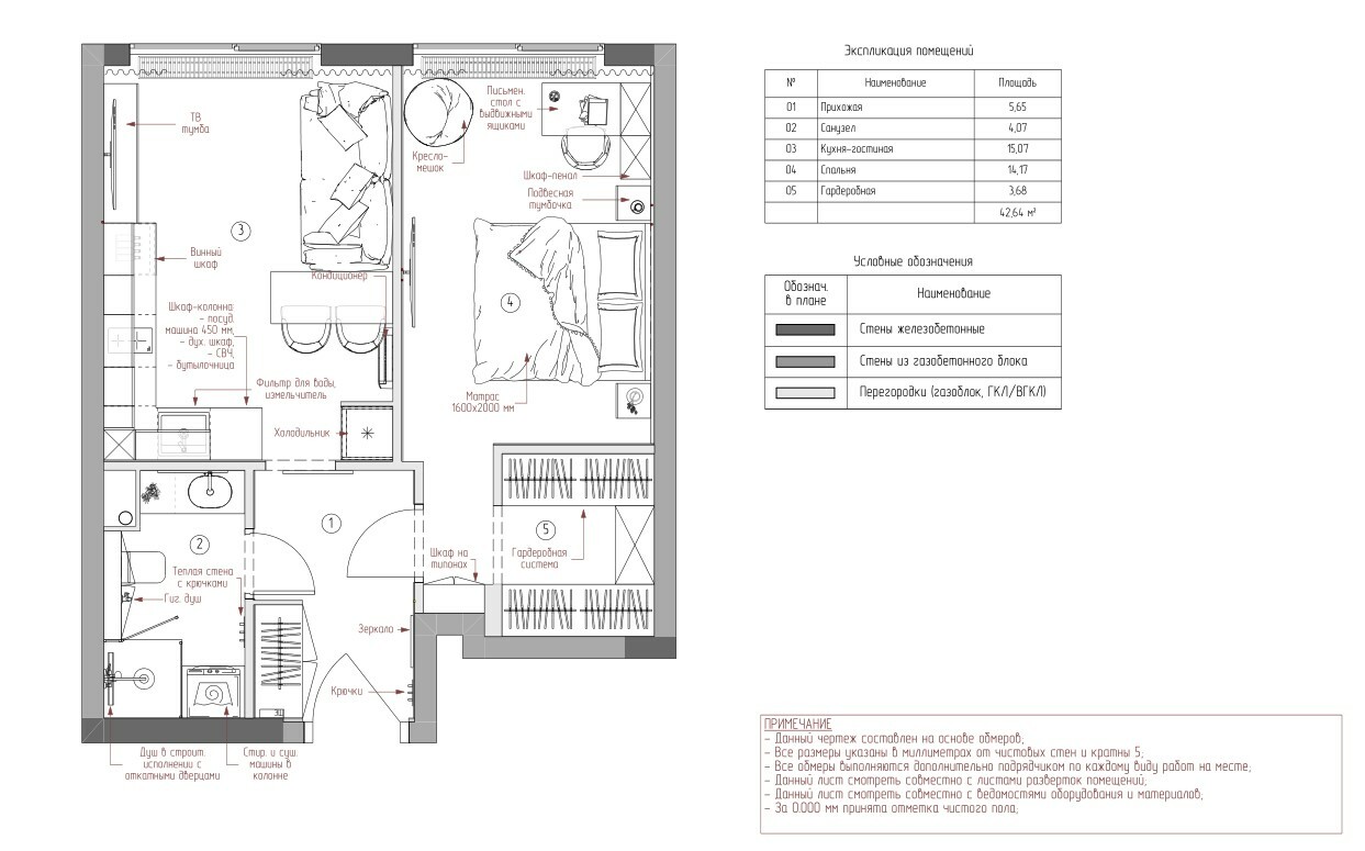
Дизайн проект разработан для молодой и энергичной девушки-тренера, которая ценит современный и стильный интерьер. Нам удалось выделить функциональную гардеробную, что бы избежать громоздких шкафов в спальне. При этом нам удалось организовать рабочее место и со шкафчиком для хранения книг.

Локация: Москва

Год реализации: 2023

Площадь:36 м²

ПЛАНИРОВОЧНОЕ РЕШЕНИЕ